Bernhard Peter
Die
Tempelstädte von Tamil Nadu
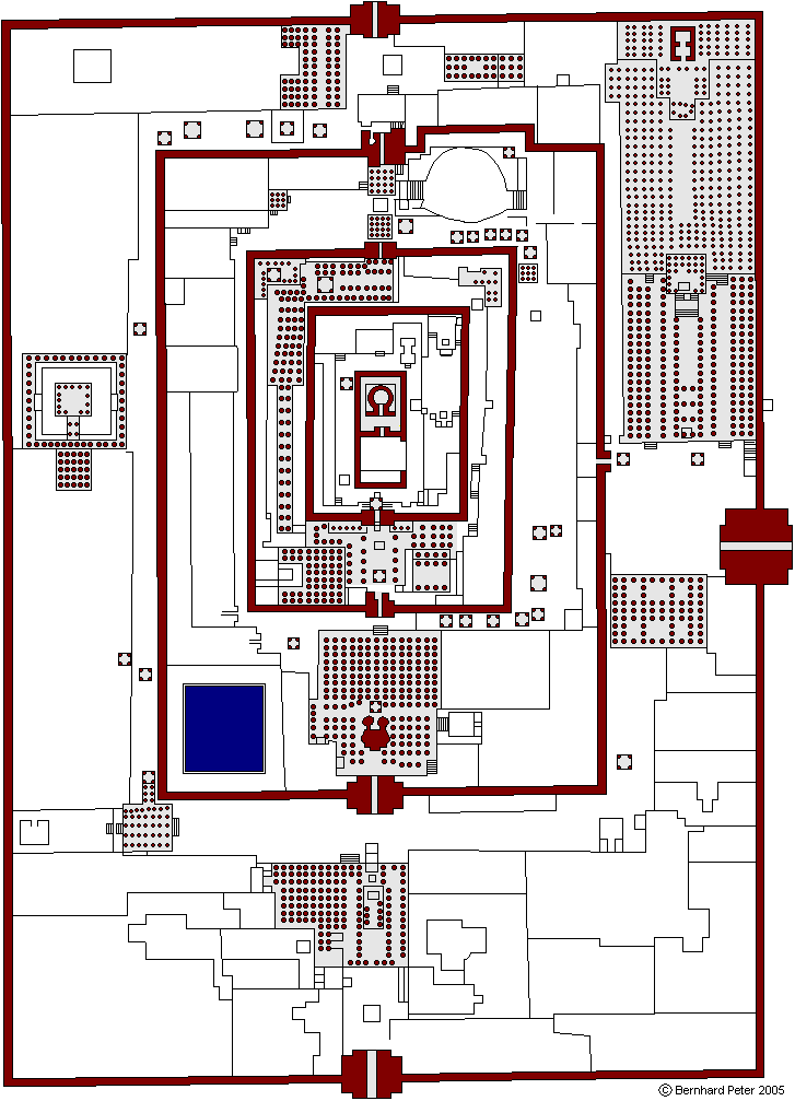
4a. Srirangam - Grundriß hoher Auflösung

(1) - Die Tempelstädte von Tamil Nadu, eine
Einführung
- (2) - Cluster von Tempeln
(3) - Stilmerkmale der
Tempelstädte von Tamil Nadu
(4) - Srirangam: Eine Idealstadt - (4a)
- Srirangam: Grundriß in hoher Auflösung
(5) - Die Tempelstadt Madurai - (5a)
- Madurai: Grundriß in hoher Auflösung
(6) - der Nataraja-Tempel in
Chidambaram
- (6a) - Chidambaram: Grundriß in
hoher Auflösung
Links, Quellen und Literatur zur
indischen Architektur
Photos Srirangam (1) - (2) (Margret Foth, Fritz Niemann)
Andere Essays über Tamil Nadu - Andere
Essays über Indien
Andere Länderessays lesen
Home
©
Copyright Text, Graphik und Photos: Bernhard Peter 2005
Impressum